Thiết bị An toàn Công nghiệp ISO 9001 LOTO Certified OSHA Compliant
2020-04-10
Hàng chính hãng Đầy đủ CO/CQ Bảo hành chính hãng

Van phao DN65 SHINYI D100-0065

SKU: SHINYI D100-0065
Van phao DN65 SHIN YI D100-0065
Thông số kỹ thuật
- Mã Hàng : D100-0065
- Thương hiệu : SHIN YI/ TAIWAN
- Xuất xứ : Việt Nam
- Kích Thước : DN65
- Tiêu Chuẩn Thiết Kế : BS 5163-2 BS, EN 1074-5
- Khoảng Cách Giữa 2 Mặt Bích : BS EN 558-1 TABLE 1 SERIES 3,  ISO 5752 TABLE 1 SERIES 3, ASME B16.10

- Tiêu Chuẩn Mặt Bích/Kết Nối : BS EN 1092-2, ISO 7005-2, ASME B16.42, JIS B2220
- Áp Suất Làm Việc : PN10/PN16 JIS 10K/16K ANSI 125-LB
- Nhiệt Độ Làm Việc : -10 ~ 80 ºC
- Môi Trường Làm Việc : Nước, Nước Thải, Nước Nhiễm Mặn
GIÁ THAM KHẢO
Bao
Tư vấn kỹ thuật:
Thông tin sản phẩm
Van phao DN65SHINYI D100-0065
Van phao Shin Yi là một loại van thủy lực dùng điều chỉnh mực nước trong hồ, bể chứa..., hoạt động hoàn toàn tự động dựa vào áp lực dòng nước, điều chỉnh mực nước chính xác nhờ hoạt động lên xuống của phao. Van phao được ứng dụng phổ biến trong các bể chứa dân dụng và công nghiệp, van được kết nối vào hệ thống dạng mặt bích.
Van phao SHINYI D100 1

Cấu tạo
Van phao được cấu tạo bởi 05 thành phần chính là thân van và nắp, ty van, lá van, hệ thống ống dẫn, hệ thống phao.
- Thân và nắp van: Thiết kế hai đầu dạng mặt bích, được đúc từ gang cầu FCD450, hai mặt được phủ bởi lớp sơn epoxy cao cấp với độ dày ≥300 μm
- Ty van: được lắp cố định vào lá van, sản xuất từ Inox 304/316, độ bền cao, chống rỉ sét
- Lá van: dạng đĩa tròn, sản xuất từ gang cầu FCD450 được bọc 100% bằng cao su EPDM an toàn cho nguồn nước sạch.
- Hệ thống ống dẫn: được làm bằng đồng thau, chống rỉ sét.
- Hệ thống phao: Gồm quả cầu thép chứa không khí gắn dạng ren với trục phao và cửa đóng bằng đồng.
Van phao SHINYI D100 2

Nguyên lý hoạt động:
Khi mực nước trong hồ bể dâng lên sẽ đẩy phao lên theo, đến mực nước định sẵn phao đẩy trục đóng đường ống dẫn lại, dưới áp lực của dòng nước lá van đóng, không cho nước qua đường ống chảy vào bể. Khi mực nước hạ xuống, phao hạ xuống theo kéo trục mở đường ống cho nước chảy qua tác động mở lá van để dòng nước chảy vào bể, hồ chứa.
Ưu điểm:
- Hoạt động hoàn toàn tự động dưới tác động của áp lực nước.
- Van được sản xuất từ gang cầu FCD450, Inox 304/316 chống rỉ sét, an toàn cho nguồn nước sạch.
- Có thể tính toán chính xác được mực nước mong muốn
Lưu ý khi lắp đặt:
Van phao được lắp đặt vào hệ thống mặt bích nên khi lắp đặt cần lưu ý một số điểm sau:
- Lắp van đúng chiều hoạt động của van (được báo bằng ký hiệu chỉ hướng trên thân van).
- Khoảng cách giữa hai mặt bích phải vừa đủ để lắp đặt van.
- Có thể dùng miếng đệm giữa mặt bích và van để tăng độ kín cho hệ thống.
- Kích thước mặt bích của đường ống phải đồng nhất với kích thước mặt bích của van.
- Van có thể lắp linh động theo phương thẳng đứng hoặc phương ngang tùy nhu cầu sử dụng.
- Thân van được lắp vào đường ống, hệ thống phao được lắp tại hồ, bể chưa ở mực nước mong muốn.
- Trước van phao nên lắp một van Y lọc để hạn chế rác vào van gây rách lá van, kẹt van
Thông số kỹ thuật chi tiết
MÃ SẢN PHẨM/CODE D100
KÍCH THƯỚC/SIZE DN50 - DN300
SƠN/PAINT Loại Sơn/Type EPOXY
Độ Dầy/Thickness ≥300µm
Màu Sắc/Color XANH | ĐỎ | THEO YÊU CẦU
BLUE | RED | AS REQUIREMENT
TIÊU CHUẨN THIẾT KẾ/DESIGN STANDARD BS 5163-2
BS EN 1074-5
KHOẢNG CÁCH GIỮA 2 MẶT BÍCH/FACE TO FACE STANDARD BS EN 558-1 TABLE 1 SERIES 3
ISO 5752 TABLE 1 SERIES 3
ASME B16.10
TIÊU CHUẨN MẶT BÍCH VÀ ÁP SUẤT LÀM VIỆC/FLANGE STANDARD AND PRESSURE RATING BS EN1092-2 PN10/PN16
ISO 7005-2
JIS B2220 JIS 10K/16K
ASME B16.42 150-LB WP-232PSI
NHIỆT ĐỘ LÀM VIỆC/WORKING TEMP -10 ~ 80 oC
MÔI TRƯỜNG LÀM VIỆC/FLOW MEDIA Nước, Nước Thải, Nước Nhiễm Mặn
Water Work, Sewage, Petroleum, Chemical, Power Plant and General Industry
Van phao SHINYI D100 3
 
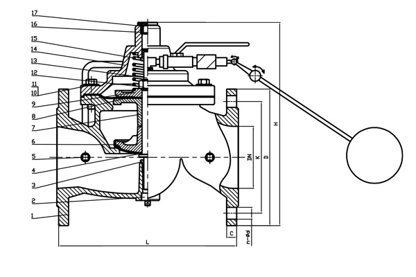
PART LIST & MATERIALS
Part No. Description Materials Materials Code
1 Body Ductile Iron ASTM A536/EN GJS 500-7
2 Screw Plug Stainless Steel AISI 304
3 Bottom Screw Guide Stainless Steel AISI 304
4 O-Ring Rubber NBR
5 Net Ass'y Stainless Steel AISI 304
6 Disc Ductile Iron + Rubber ASTM A536 + EPDM
7 Lower Plate Ductile Iron ASTMA536
8 Diaphragm Rubber + Nylon Fabric NBR/EPDM + Nylon Fabric
9 Upper Plate Ductile Iron ASTM A536
10 Bolt Stainless Steel A193 B8
11 Washer Stainless Steel AISI 304
12 Nut Stainless Steel A 194 Gr.8
13 Stem Stainless Steel AISI 304
14 Bonnet Ductile Iron ASTM A536/EN GJS 500-7
15 Spring Stainless Steel ASTM A313 F304
16 Top Screw Guide Stainless Steel AISI 304
17 O-Ring Rubber NBR
 
DIMENSIONS
DN L D K n-Ød C H
PN10 PN16 PN10 PN16 PN10 PN16 PN10 PN16
50 203 165 125 4-Ø19 19 235
65 216 185 145 4-Ø19 19 258
80 241 200 160 8-Ø19 19 289
100 292 220 180 8-Ø19 19 328
125 292 250 210 8-Ø19 19 331
150 356 285 240 8-Ø23 19 427
200 495 340 295 8-Ø23 12-Ø23 20 550
250 730 405 350 355 12-Ø23 12-Ø28 22 681
300 850 460 400 410 12-Ø23 12-Ø28 24.5 758
 
Van phao SHINYI D100 4
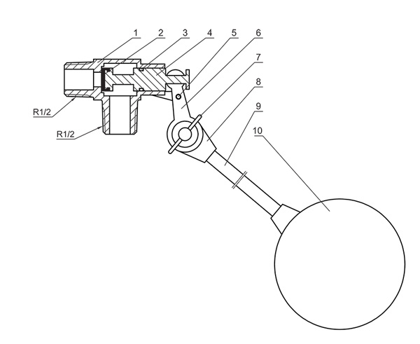
FLOAT MATERIALS
Part No. Description Materials Materials Code
1 Body Stainless steel ASTM A351CF8
2 Disc  Stainless steel + Rubber AISI 304 + EPDM
3 O-Ring Rubber NBR
4 Stem Stainless steel  AISI 304
5 Pin Stainless steel AISI 304
6 Shifting Yoke Stainless steel AISI 304
7 Butterfly Nut Stainless steel AISI 304
8 Adjusting Block Stainless steel AISI 304
9 Pole Stainless steel AISI 304
10 Ball Stainless steel AISI 304
Đánh giá sản phẩm
Mã bảo mật

 

T2-T7: 8H–17H30
phone KD 01: 0912.124.679 phone KD 02: 0938.125.206 hotline HOTLINE: 0912.124.679 Zalo Zalo Facebook Facebook
Bạn đã không sử dụng Site, Bấm vào đây để duy trì trạng thái đăng nhập. Thời gian chờ: 60 giây